亿田高端定制厨房,秉持“美为本,人为尊”的设计理念,将艺术自然、人文科技相融,定制一个家庭的生活格调。
下面一起来看看落地案例吧~


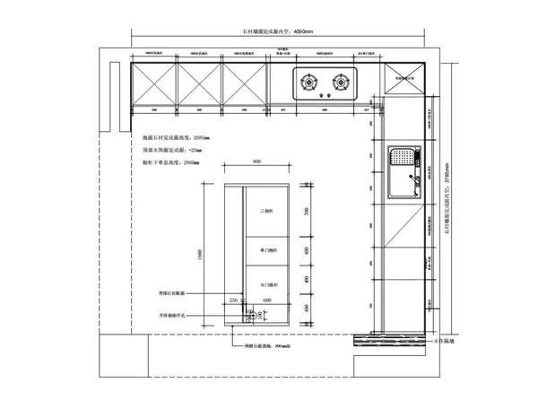
【安第斯】系列,采用经典黑白配色,简约永不过时。厨房色调明亮,用大面积纯白覆盖,黑色线条加以点缀,彰显着高级的空间质感。



备餐烹饪时难免弄脏厨房,有些污迹还难以祛除,选取油砂白玻璃门板+石英石台面,耐油污、耐刮花、易清洁,从源头避免麻烦。
还有一些关于收纳的小心机设计,让杂物不再发愁,摆放井井有条,取用方便,整洁美观。




【潮流家电网版权声明】:本网站注明转载的内容均来源于互联网,转载的目的在于传递更多信息及用于网络分享,并不代表本站赞同其观点和对其真实性负责,也不构成任何其他建议。如果您发现网站上有侵犯您的知识产权的作品,欢迎提供相关证据,发送邮件至731801816@qq.com,我们会及时修改或删除。
未经正式授权严禁转载本文,侵权必究。

